三合院合集8套三合院农村别墅设计,尽显国粹韵味
一栋房子一个院落,8款三合院别墅,中式三合院,美如诗画,才配得上中国人的审美。农村建房最合算不过了
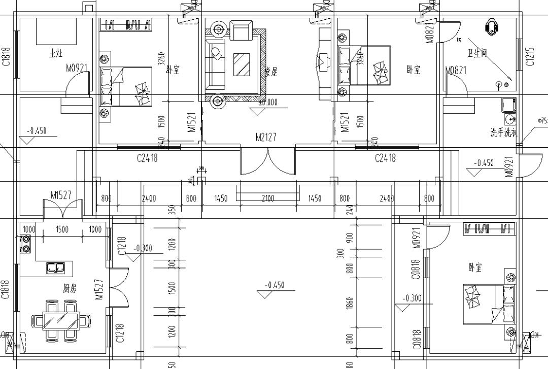
01.
占地129—三合院别墅
成都大邑

占地尺寸:13.8m×13.4m
结构形式:砖混结构 房屋构造:4室2厅2卫
建筑面积:约129平 占地面积:约129平 施工面积:约188平

▲户型平面图
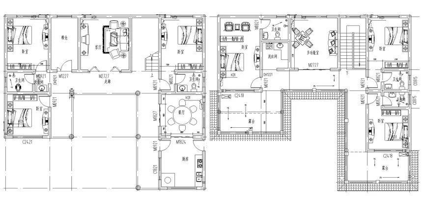
02.
占地308—三合院别墅
巴中南江

占地尺寸:22m×17m
结构形式:砖混结构 房屋构造:8室2厅8卫
建筑面积:约533平 占地面积:约308平 施工面积:约xxx平


▲户型平面图
03.
占地166—三合院别墅
四川仁寿

占地尺寸:19m×12.9m
结构形式:砖混结构 房屋构造:3室1厅1卫
建筑面积:约166平 占地面积:约166平 施工面积:约222平

▲户型平面图
04.
占地172—三合院别墅
四川资阳

占地尺寸:16.2m×14.1m
结构形式:砖混结构 房屋构造:6室2厅5卫
建筑面积:约318平 占地面积:约172平 施工面积:约432平

▲户型平面图
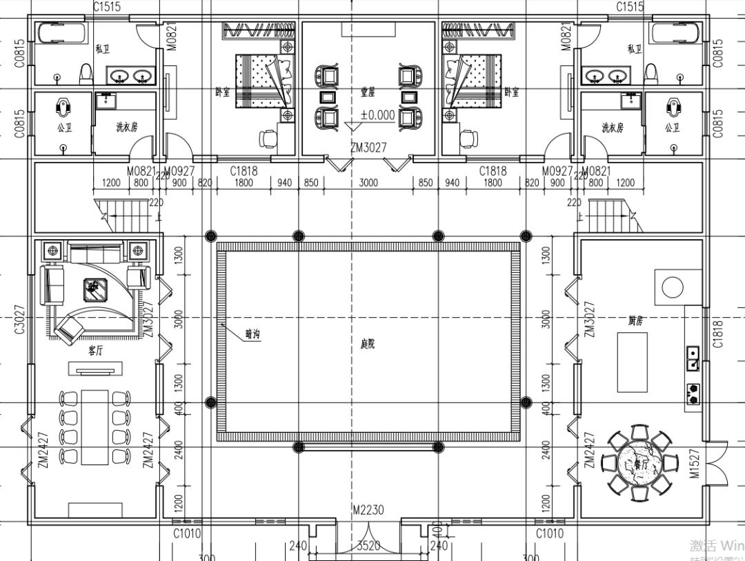
05.
占地212—三合院别墅
四川南充

占地尺寸:20.7m×15m
结构形式:砖混结构 房屋构造:10室3厅6卫
建筑面积:约386平 占地面积:约212平 施工面积:约460平


▲户型平面图
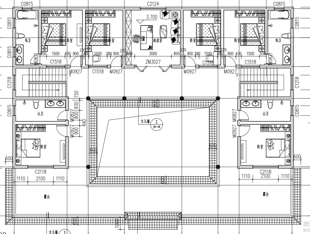
06.
占地324—三合院别墅
四川巴中

占地尺寸:22.7m *17m
结构形式:砖混结构 房屋构造:8室3厅8卫
建筑面积:约570平 占地面积:约324平 施工面积:约794平


▲户型平面图
07.
占地161—三合院别墅
四川资阳

占地尺寸:16.8m×14.1m
结构形式:砖混结构 房屋构造:3室2厅2卫
建筑面积:约161平 占地面积:约161平 施工面积:约302平

▲户型平面图
08.
占地183—三合院别墅
四川成都

占地尺寸:18.2m×12m
结构形式:砖混结构 房屋构造:7室3厅4卫
建筑面积:约331平 占地面积:约183平 施工面积:约400平


▲户型平面图
END
标签:
165
魔兽世界里,这10大“神器”,你非常想要却怎么也得不到! 相信很多玩魔兽世界的小伙伴们,在这么多年的魔兽生涯里,总会有那么一件神器,你求之不得,却又朝思暮想。 那么小编...
74
20款不同造型的粽子,你喜欢哪一种?粽子也要我行我素 端午虽已过,忍不住搜集一些来自世界各地的粽子,给大家一睹为快~ 端午节是我国传统节日 ,各个国家、各个城市的粽子包法...
94
五公里跑步的标准时间是多少 五公里是个门槛,当一个跑步人能一口气跑下来五公里时,说明他已经建立了初步的跑步基础,自信心会得到极大增强,从而可以开始向七公里、十公里乃...
91
说文解论语:事君数,斯辱矣;朋友数,斯疏矣。 《论语·里仁·第二十六》原文: 子游曰:“事君数,斯辱矣;朋友数,斯疏矣。” 字句详解—— 子游: 孔子的学生。 【事君数,斯...
129
阎婆惜偶得招文袋,因此误了卿卿性命,是红颜薄命还是作祸当死? 前几年,北京小曲《探清水河》忽然间被某个相声演员带火了。一时间,街头巷尾男女老少都能跟着哼唱几句。那么...
111
实测!空调和暖气哪个省钱?省多少钱? 冬天,天气寒冷! 取暖成了大家不得不面对的问题,在室外可以穿上秋衣秋裤、毛衣毛裤,套上羽绒服和加绒裤,带上毛绒绒的帽子,裹得严...
122
岳云鹏大女儿罕见露面,14岁颜值高很可爱,脸型和父亲一样漂亮 3月25日,是岳云鹏农历四十岁生日,虽然他本人没有分享自己过生日的画面,不过他的徒弟却曝光了现场画面。尚筱菊...
170
中国老兵王琪:因迷路滞留印度54年,娶妻生子,晚年带全家重返祖国 2017年2月11日,一位老人从咸阳国际机场走出,他环视着周围陌生的一切,随后与赶来迎接自己的亲人抱在了一起。老...
119
幽默逗趣的15个开车段子,精简笑料足,看完能笑一天 一、两个监考的男老师真霸气,说着一口纯正的本地话,我都没听懂!考试的时候进来一个女生,一个手拿包,一个手拿喝的,一...
101
英语口语关于搭车和开车的常用句子 点击关注“零食英语”,获取最实用的英语学习知识。 在国内我们急着去一个地方我们会搭车过去,也可以用软件叫车,如果我们是在国外的话,...
170
舞者对,“舞鞋”真的懂吗?如何选对“舞鞋”,很重要 一双合适的舞鞋对一个舞者来说是很重要的,那是舞蹈灵魂的凝聚。舞蹈鞋有拉丁舞鞋、摩登舞鞋、混合舞蹈鞋、爵士舞蹈鞋、...
179
这几家徒手餐厅开了这么久,一定有其过人之处! 徒手餐厅曾经在长春尤为火爆,几年过去了,咱们来看看经过岁月的清洗,依旧活跃在吃货眼中的徒手餐厅吧! 猿来·N年以前徒手餐...
187
飞镖——范赫尔文获世锦赛冠军 新华社照片,外代,2017年1月3日(外代二线)飞镖——范赫尔文获世锦赛冠军1月2日,在英国伦敦,荷兰选手范赫尔文庆祝夺取世界飞镖锦标赛冠军。当...
158
崖山之后无中国,明亡之后无华夏”是怎么来的 还在犹豫什么?好运的机会稍纵即逝!赶紧关注我,一起开启幸运之旅吧!祝您财运亨通,心想事成! 崖山之后无中国,明亡之后无华...
101
那些“甜到掉牙”的高评分少女恋爱动画 今天给大家推荐几部“甜到掉牙”的恋爱动漫,让这个暑假甜一暑假。喜欢的赶紧收藏起来吧~ 月色真美 成熟稳重,可靠正直的比良拓海、温柔...
143
甘肃一村民家门口玉米因“影响视野”被拔,涉事干部上门道歉,农户婉拒赔偿 极目新闻记者 舒隆焕 近日,有甘肃平凉崇信县网友在人民网“领导留言板”反映,一个自称是该县黄寨...
64
情种朱亚文又有新欢葛莉儿 #影视杂谈# 老实说,电视剧《远去的飞鹰》去年我就看过,只不过受《我的娜塔莎》影响,我又调出剧集查看了一些能容,采集一些相片而已。可是看着看着...
191
六一儿童节发型推荐 宝妈们:这样的男孩我也想生一个 今天是6月1日儿童节,当大部分家长都在此刻,分享自己孩子美美的、萌萌的照片的时候,其实你也可以把自家的小家伙打扮得可...
110
让人后背发凉的电影《盲山》,揭露被拐妇女的真实经历 相信很多人还没看过《盲山》这部电影,这部电影删减了很多镜头,甚至还不能播出。 电影《盲山》由真实故事改编。 电影的...
59
奇葩有趣的15个污段子,笑点满满,不开心了看看 一、女神问我:可不可以当我的备胎?我一听怒了:不行!我堂堂男子汉大丈夫,怎能如此!女神微微有些惋惜。然而我又说:我七尺...