产品洞察 | 小面积四代宅,是否打动了刚需客户?
在探索第四代住宅的发展路径中,产品创新还需围绕有效的价值转化展开。
文/克而瑞产品力研究中心
第四代住宅作为当下备受瞩目的市场热点,其核心优势在于对居住空间的巧妙扩充以及居住场景的多元拓展。不过,对于那些将小面积、低总价视为重要考量因素的刚需购房者而言,四代宅是否真的能够精准契合他们的需求,仍需进一步探讨。
目前,北京、广州等地的小面积四代宅已正式入市,但从市场反馈来看,其受欢迎程度呈现出较为明显的分化态势。
01 广州首个小面积四代宅市场热度较高
改善型需求的持续崛起是楼市的重要趋势,但刚需群体依然是一线城市新房市场的重要支撑。因此,创新的四代宅,也需要充分考虑与刚需购房者的适配性,以平衡当地刚需客群的置业门槛和对居住品质的升级需求。
在广州,小面积产品四代宅受到热捧。招商·林屿境是广州首个第四代住宅产品,瞄准刚需及刚改需求,主力户型涵盖82㎡三房及110㎡、125㎡四房,凭借最大25%的阳台面积占比与最大40%的空中花园赠送面积等规划条件,最高实用率接近140%。
以125㎡户型为例,该户型配有双空中花园,奇数层户型中,较大的空中花园连通客厅和两间次卧,较小的空中花园则联通餐厅;偶数层户型中,两个空中花园分别实现双动线入户的独立玄关花园,以及带私密花园的主卧套房系统。差异化的产品策略,既满足了传统大阳台爱好者的需求,又为追求新颖生活方式的购房者提供了创新选择。
图:广州招商·林屿境125㎡奇数层与偶数层户型图


相比之下,相邻地块的能建·御璟兰园作为传统住宅代表,虽同样定位刚需刚改市场,推出88-138㎡三/四房+1户型并实现约100%的得房率,却在市场表现上相形见绌。从销售反馈看,招商·林屿境去年底首开当日去化率94%,今年3月加推去化率达65%;而能建·御璟兰园去年12月加推的180套房源,当日去化率仅1%,产品的受欢迎程度有很大差异。可以看出,在成交均价相近(均为2.8万元/㎡左右)的情况下,四代宅的市场接受度显著高于传统产品。
可以说,小面积四代宅凭借更高的性价比、更丰富的居家场景,以更高的产品价值得到了广州市场购房者的普遍认可。
02 北京购房者对小面积四代宅“不买账”
然而,在北京,四代宅的市场认可度却不尽如人意。龙湖·观萃是北京市场上颇具代表性的第四代住宅项目,覆盖77-129㎡、二至四房户型,主要满足刚需刚改家庭的居住需求。龙湖·观萃每户均配备约6米挑高的空中浮岛阳台,以117㎡的四房户型为例,奇数层的露台环绕主卧,形成270°开阔视野;偶数层露台则连接客厅和次卧,实现不同的居住场景。
图:北京龙湖·观萃117㎡四房户型图


同时,龙湖·观萃更是住建部“全国首届‘好房子’设计大赛”一等奖作品,首次在北京引入阳台赠送、架空层、景观风雨连廊等产品理念,在提升居住舒适性方面进行了多维度的探索。
尽管在产品设计上具有诸多亮点,龙湖·观萃的实际市场表现却不如传统住宅产品。该项目自去年9月开盘以来,推出857套住宅,目前备案仅292套,去化率34%,成交均价5.7万元/㎡。
龙湖·观萃位于昌平区回龙观板块,周边三公里范围内在售的三个传统住宅项目展现出更强的市场竞争力。其中,中海寰宇未来自2024年3月底首开至今,累计推出932套房源,已完成663套备案,成交均价达6.2万元/㎡;越秀星越自2023年首开以来,经过今年3月的加推,788套房源中已备案684套,成交均价同样为6.2万元/㎡;最新入市的星耀未来,在4月7日首开当日即实现229套去化,其销售均价为5.8万元/㎡。可以看出,龙湖·观萃在成交均价低于周边竞品的情况下,去化速度也表现较弱。

龙湖·观萃的销售表现欠佳,背后的原因是多方面的。然而,第四代住宅这一创新户型未能如预期般受到购房者的广泛青睐,却是不争的事实。
对刚需刚改购房者而言,得房率是他们非常关注的重要指标之一。据悉,龙湖·观萃的实际得房率最高可达94%,相比之下,周边竞品大多在80%-90%之间。对于那些注重性价比的购房者来说,这样的优势本应极具吸引力。然而,现实情况却是,购房者并未因此而对该项目青睐有加。究其原因,第四代住宅在北方地区的适配性问题是关键。
一方面,北方城市的冬季严寒,使得开放式露台的实际使用效率大幅降低。一年有好几个月,花园露台的生活场景沦为“看得见却用不上”的摆设。反观周边竞品采用的非错层阳台设计,虽然赠送面积不及四代宅,却规避了气候限制,还能通过改造拓展实际使用空间,更契合购房者对实用性的追求。
另一方面,北方城市大风天气较南方更为频繁,为购房者带来额外的维护负担。对于改善、及高端客群来说,露台的维护可以交给保姆或专业人员,他们只需享受露台带来的生活品质提升,而无需操心日常打扫。然而,对于时间紧张、经济能力有限的刚需刚改购房者而言,露台的日常清洁大多需要自己完成,这无疑增加了长期的隐性成本,从而显著影响了产品的性价比。
整体来看,北方的气候条件对第四代住宅的实际使用价值产生了较大影响,且对刚需购房者的影响更为显著。值得注意的是,北京住宅新规后,个别项目的阳台设计做了内阳台和外阳台的结合,既加大了赠送面积,又提升了赠送部分的实际使用效率。这也许是未来北京的主流方向。
03 更具普适性的类四代产品还需政策支持
小面积四代宅在不同城市的市场表现差异,在广州,这类产品的实际使用面积和居住舒适度得到大幅提升,故而持续热销,获得了市场的高度认可。而在北京,四代宅,尤其是小面积产品的实际优势无法完全体现出来,其销售表现逊色于传统住宅。
这种差异化销售表现的核心在于:产品创新是否真正转化为居住价值的实质性提升。对于刚需刚改客群而言,空间利用率提升带来的吸引力显然更为直接和显著。
实际上,政策端的持续松绑为“类四代住宅”的出现提供了重要支撑。2023年实施的《广州市建筑工程容积率计算办法》将半开敞空间比例上限从15%提升至20%,使得新规下住宅产品得实用率提升至100%-120%。2024年,部分地块的规划进一步放松,将阳台面积的占比进一步提升至25%-30%,性价比进一步提升的“类四代住宅”落地广州。
尽管这类产品并非错层挑空露台,但通过增加阳台、飘窗、花池等赠送面积,同样实现了功能升级与体验重构的双重突破。
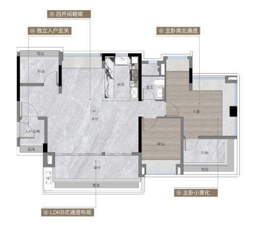
例如,越秀云悦是广州首个阳台占比达25%的超新规项目,主力户型是88㎡的3+1房和105㎡四房。以105㎡户型为例,北向次卧和主卧的部分空间以半计容的阳台报建,配合全屋飘窗和花池全赠送,最终实现34㎡的不计容面积。
图:广州越秀云悦105㎡原始户型图

与错层露台不同,阳台空间可以封闭改造。调整后的105㎡户型可以实现4房2厅2卫,更有270°全景式主卧套房、双面宽景观阳台和更优的采光通风,其实用率也突破125%。
图:广州越秀云悦105㎡户型规划图

越秀云悦通过设计创新将政策红利转化为切实的居住价值提升,从而在销售端取得亮眼成绩:12月7日首开105套房源,当日去化率达86%,月底加推的110套房源去化率83%,目前项目整体基本清盘。这一案例清晰地表明,实用主义是刚需刚改客群的核心诉求。
实际上,这种改良后的“类四代”中小户型,通过巧妙的设计,让小面积也能享受到改善户型的尺度。对偏刚性需求的客户来说,“类四代”产品既保留了四代住宅的空间优势,又通过可封闭的阳台设计提升了其地域普适性。
从实际落地来看,这类产品的推广还需要政策支持。广州越秀云悦的实践,很大程度上得益于当地容积率计算规则的优化,以及地块规划条件的特殊许可。这对于更多城市在住宅产品升级方面的探索,无疑提供了一种可借鉴的方向。
综上,在探索第四代住宅的发展路径中,产品创新还需围绕有效的价值转化展开。从广州、北京两地对小面积四代宅的实践探索可以看出,若仅仅将目光聚焦于错层露台带来的更大面积赠送,而忽视功能空间的实际使用价值,这种创新实际上难以真正打动价格敏感的购房群体。刚需刚改客群对居住空间的核心诉求始终是功能的实用性和舒适性,而非单纯的场景升级。因此,新一代住宅产品的设计应更具灵活性,若户型条件受限,不应强行堆砌错层露台等元素,而应专注于优化核心功能区的布局与空间效率。
未来第四代住宅的发展,应更加注重因地制宜、因需而设,做出符合地域特征、客户需求的优化调整,广州非错层的“类四代”中小户型便是贴合目标客群实际居住需求的探索方向。只有当政策红利、产品设计与地域特征三者形成良性互动,真正解决用户的痛点问题,才能打造出真正符合市场需求、赢得市场认可的优质住宅产品。
撰稿 | 王映雪 排版 | 土木
往期回顾
今年杭州的低密度住宅太卷了
打破面积壁垒,小户型四代宅产品涌现
西安四代宅产品内卷,露台设计都有哪些选择?
谨慎探索中的品质突围:聚焦多城市四代宅的新进展

